
Reading irrigation plans
In a previous post we discussed irrigation principles of flow & pressure, types of sprinklers, the relationship between irrigation, plants and the land itself, and common problems one encounters in the field. https://missionazul.com/2012/09/14/irrigation-notes/
In this post we will look at irrigation plans and simplify it such that any ol person can understand a bit of what is happening when we go from an engineer’s computer drawn plan to the field where water is spraying and plants are green.
The Hunter Industries guide to irrigation says:
The American Society of Irrigation Consultants (ASIC) and the American Society of Agricultural Engineers (ASAE) have both proposed standardized symbols for landscape irrigation. The irrigation industry, however, has been reluctant to accept any set of standard symbols for irrigation design.
Because of a lack of standardized symbols, many designers use some of the proposed symbols along with symbols they have designed…Symbols, no matter who designs them, should be easy to draw by hand, and should be easily distinguishable from one to another.
So that is why we are in a state of doo doo cause everybody just makes up their own thing. Sometimes the plan has a nice legend or key, sometimes not. Some are real specific and almost overly detailed, others are so vague as to be not helpful. Yes its a mess. Add to that each manufacturer/companies specialized lingo and vocabulary and acronyms and it feels like a brain hemorrhage poppin. We will look at at bunch of plans later…
There are disparate spheres of knowledge and skills, and more often than not, the folks in the field speak a different language than those in the office at the computers. The person working retail nursery is not the person digging trenches or gluing pipe. And those in management are a whole nother breed altogether. In the old time world they would know stuff in the specific field cause they rose up from the bottom – apprentice to journeyman to contractor to supervisor to superintendent to general manager. These days knowledge, trial and error, and experience have been divorced from being a boss, hence bosses just move pieces (the workers) around on a chess board, and they treat running a government the same as running a non profit the same as running a corporation the same as running anything somewhat hierarchical. Therefore, there is the disjunct in communication. And unfortunately, many of the folks working around ‘irrigation’ are not really ‘plant’ people, they do not know much about the plants water needs beyond ‘head to head’ coverage emphasized in the lawn care industry. They might know about WUCOLS or ‘drought tolerance’ as a concept, but they know the plant as a name on a spreadsheet, not as a living being changing and adapting over time to a place in flux. Most treat irrigation as a simple engineering project; when in fact the complexity of nature’s interactions between plants, soils sun, exposure, slope and so on demands a more flexible blend of science, art, and human judgement formulated from time spent outdoors in careful observation.
So let’s say you come upon a plan, and want to see what the water is doing and if your plants are gonna get watered. Or, you are a new designer or architect, and want to specialize in irrigation. Or, you are the laborer or gardener in the trenches, and want to see what sprinkler head goes where, where to grade the soil with the kubota, or how deep to bury the line and so on. What does the plan say?! Putting aside the variation and myriadical diversity of symbols, theres basic commonalities and features involved no matter who drawn it. So first, some basics, in case you have absolutely no idea…
Water gonna come from somewhere. Whether that be a in a rural area where you captured a spring and put it in a water tank up high on the hill, or if you are pulling water out of a well at 50’ or 100’ with a pump or a donkey going in circles or an old fashioned wind mill. If you are in town you are in luck cause it probably just comes right out of a tap when you turn the valve on. Anyhow the water in the pipe that comes in to your garden or landscape we can call that the Main Line. Hopefully that is a pipe with a nice thick diameter so you have a lot of water coming in. On the drawing this might be a thick solid line, hopefully with some kind of notation denoting its diameter. Then from that line will be smaller lines, maybe thinner lines or dotted or what have you, to show smaller pipes going off eventually to the sprinklers. Sometimes those smaller lines are labelled as ‘Laterals’. And if the water line happens to travel under some hardscape like a sidewalk or a patio then it will possibly travel in a sleeve which is like a hard Conduit of a protection for the pipe within. Most of the time the buried line will be straight lines cause it is plastic PVC or copper pipe or sometimes still galvanized steel pipe. But if they are depicting drip irrigation lines made of polyethylene plastic or the newer bendable PVC plastic then it might be curvy loosey goosey lines so pay attention.
In between the lines you are going to see more symbols.
Like any system, you want to have places where you can turn it on or off. That way, if you have a leak somewheres, you can fix it easily. Or, you can divert the incoming water to different areas, and water them at different times with a bunch of separate valves. Cause you only have so much water coming in at a time, and have to water a large area. Hence valve and valve symbols. Gate keepers. And theres lots of different valves! Gets confusing fast!!
A common one we use is known as the Remote Control Valve cause you can turn it on and off ‘remotely’ with an electrical signal. Oftentimes these valves might be buried in a box for safety and to minimize vandalism. Know that theres gonna be wires connected to this valve; the wires connect back to a Controller which tells the valve to turn on and off at this particular time, on this day of the week, for how long, and so on. Sometimes the Controller is called a Timer. The Remote Control Valve is written on some plans as a Solenoid Valve because it is a magnetic electrical solenoid with a spring that opens and closes the valve. Like everything, don’t get lost with the names, understand the function and what it is used for.
Besides the Remote Control Valve theres also manual valves that you might use to open and close the system for maintenance or repairs. Sometimes these are labeled as Isolation Valves. Meaning you can isolate a part of the irrigation system without turning off everything all at once. These can be a Gate Valve ( like a warehouse gate that moves up and down to open and close) or a Ball Valve (like a ball that turns on an axis and opens and closes the opening). These valves will usually be found on the water line before an area to be watered. That way you can just turn off sections of a system, zone A or zone B or zone 12F or what have you. In a more complicated system you might run across a Hydraulic Valve which is able to control the flow volume or direction or pressure of the water moving through. But again, just another Valve…
In public spaces there are also installed along the water line features called Quick Couplers. Theres this little Quill you can plug into it and then you can instant water. We have these in Golden Gate Park. This can be very convenient if say a dog pooed all over and you have to wash it off the walkway, or if the automatic sprinklers are missing a spot and you want to irrigate by hand with a hose and a nozzle. Kinda like what they call plug n play; having a hose bib water faucet easy at hand.
Of course water is a resource these days and water is money. You have to pay for the water that you use and so there is usually a Water Meter at the beginning of your system to measure how much water you are using. Basically where the municipal line and your water line meet. And where the irrigation lines are connected to the water supply, that is called the Point of Connection. In the suburbs the Point of Connection is sometimes right after the meter; with a line going into the house for drinking bathing etc., and another line going outside to the landscape and irrigation. In San Francisco the Point of Connection is usually a T junction by the hose bib in the back of the house that leads to irrigation lines for lawns or shrubs or raised beds. All the water comes through the house first.
All along the irrigation system there are additionally one way valves that make sure the water goes one way and one way only, and that it does not gets sucked or siphoned back into the water supply lines. In technical lingo you will see these in the legend as Backflow Prevention Assembly or Pressure Vacuum Breaker or Check Valve and such. Theses are sometimes very small or very big devices, and they can be attached to the hose bib or the Remote Control Valve or be in a huge cage being fed by a massive 4” main line (outside of a school or park, for instance). Just imagine that you have been spraying pesticide from a hose-on sprayer with your garden hose at the aphids and mealy bugs in your garden. For some reason there is a break in the water supply line and water travels in a sucking action, backwards back up the line and all of the sudden all that nasty pesticide yuck yuck from your hose is in the city water supply. Not good. Hence, back flow prevention.
Finally, there is the sprinklers and nozzles themselves. There are endless kinds. Huge ones that spray 60’ diameters, micro sprayers, fixed heads that spray in only one direction, rotating heads that turn in circles… Endless. Most of the time the symbols will show you the Arc of the sprinkler head shown in dark or black, whether that be a quarter or a half or a full circle of an arc.
For drip irrigation systems you will also see pressure regulators and filters depicted on the plan. The pressure regulator lowers the incoming water pressure since drip systems are not as strongly built as regular pipes and also they do not need as much water pressure to operate. The filter is there to catch bits of particles, so that the drip irrigation system with tiny little orifice holes does not clog. If it clogs, then the plants go dry, and its caput.
In the irrigation system you may also see a Flush Valve symbol. In drip irrigation that is just a cap you can unscrew at the end of the system and flush water through it time to time as part of maintenance chores. That way it cleans out any bits of clogs and things.
Lastly you might see an Air Release Valve symbol. This valve removes the trapped air in the irrigation line and ensures water keeps flowin. Think about when you suck root beer out of a straw then put your thumb over the straw hole. Or when you are pouring liquid laundry detergent and it doesnt come out and you screw open the other cap on the bottle and whoooosh. Or you ran the Bobcat out of diesel fuel and have to purge the fuel line of air before it will have fuel and start up again. Same basic ideas here.
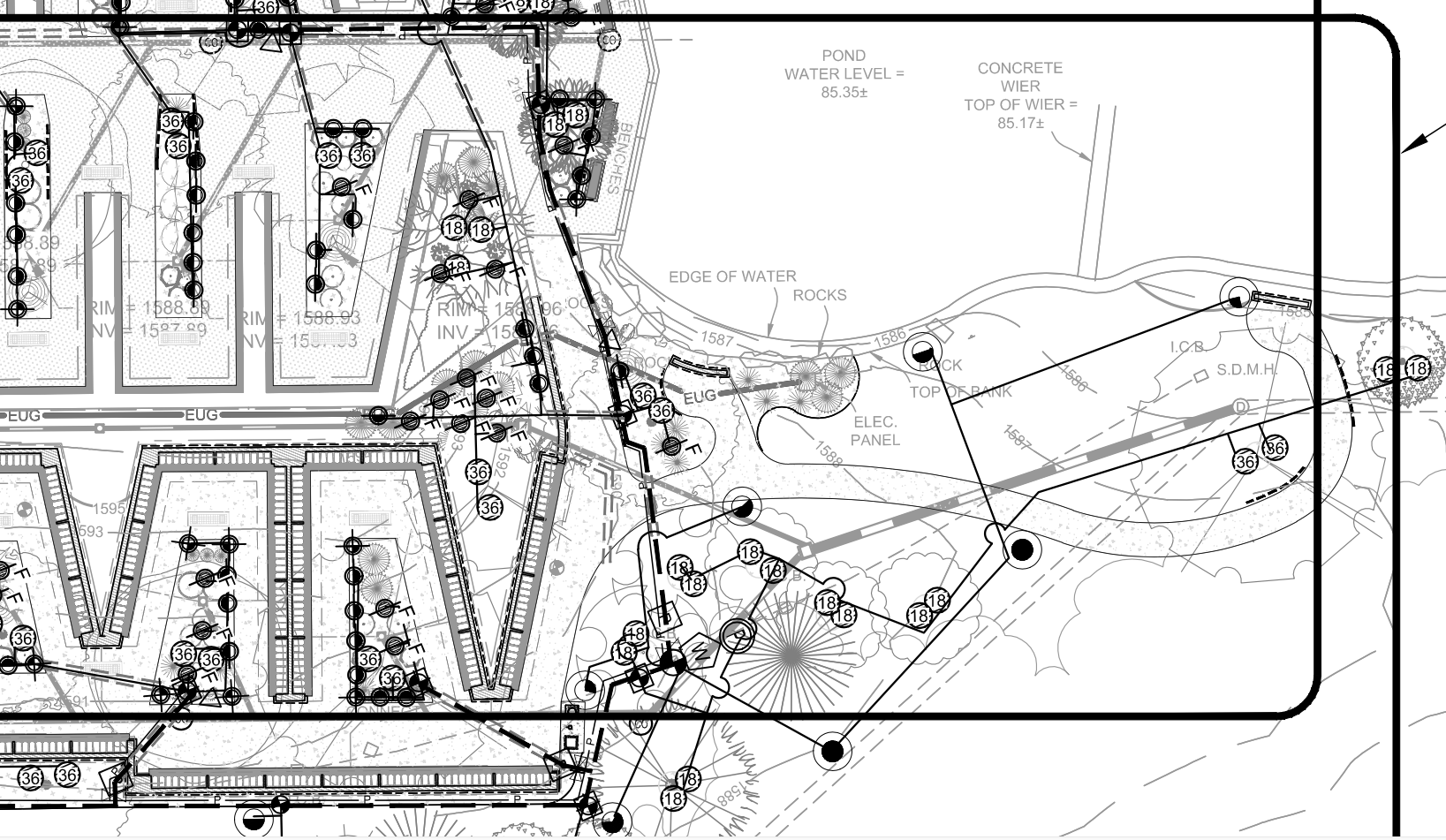
That is about all, lets take a look at some legends pulled from old plans I had laying around or found online . Like we mentioned, they are all different, get used to it. Dont worry about the appearance of the symbol, understand why its there. Look through the myriad of symbols, see if you recognize the parts we just discussed. And try to figure out some consistent ones you can copy to draw an irrigation plan of your own.








One of the most important symbols/information source is contained in this six sided hexagon (sometimes it is a rectangle or a circle too; remember that the plans are not standardized). At the least it tells you what Station or Zone it serves, how much water is flowing past it measured in GPM Gallons Per Minute (kinda tells you theres x number of sprinklers on this line sucking oh so many gallons per minute), and the size of the Valve which as you know would determine how much water can flow past in that pipe. Pipes in most smaller applications like homes and landscapes come in the 1”, 3/4”, and 1/2” sizes. Gets head scratching too when they start writing metric mm or liters measurements instead of inches and gallons and dont write the notations.




Alright, heres some plans. Some are really hard to read because they are not colored, there is no differentiation between the line weights, and there is too much information all crammed together in layers atop one another. It is like reading a cuneiform tablet or ancient script carved on a tortoise shell. Try to track it down – the water that is – from the Controller to the Valve to the Lines and finally the Nozzles/Irrigation Heads. Thats all it is… Take your time, here we go!




