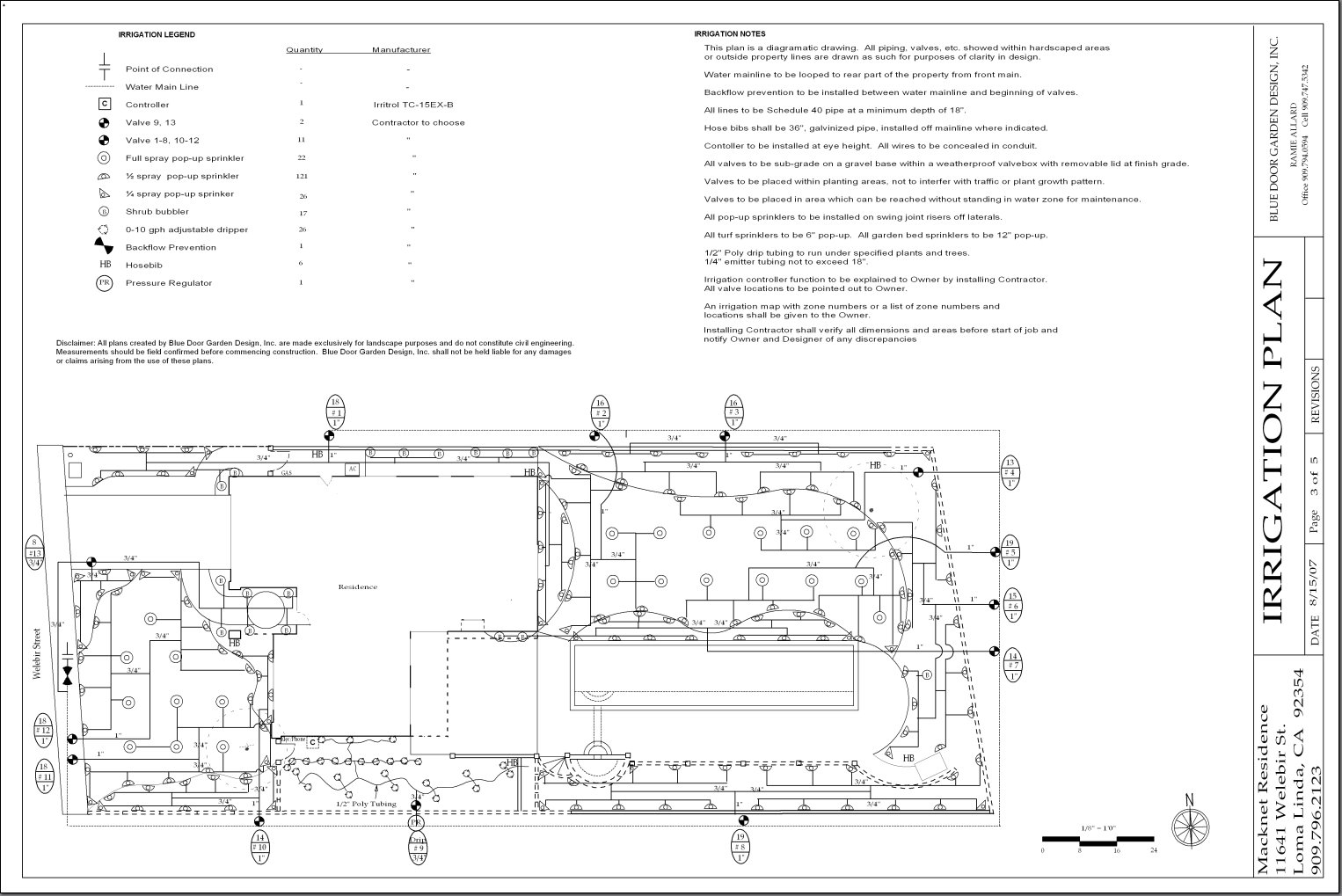
In this slideshow we show you the different kind of parts in a basic irrigation system, and how they are planned and laid out to function together. Then we begin a walkabout of the neighborhood to observe and analyze how well they work, and how to improve the design such that it works according to plan over its lifespan.























































